Kühlwasserbehälter Nutzvolumen 57m³ zur freien Aufstellung im frostgeschützten Raum
Das neue Bauprojekt von SEW-Eurodrive in Bruchsal, das derzeit in 2025 gebaut wird, ist das "Prüf- und Testzentrum Motoren". In diesem modernen Test-Zentrum werden unter anderem Motoren, Getriebe und komplette Antriebssysteme auf ihre Leistung, Effizienz und Lebensdauer getestet. Es ist ein wichtiger Schritt für das Unternehmen, um ihre Produkte weiter zu optimieren und den hohen Qualitätsanforderungen seiner weltweiten Kunden gerecht zu werden. Über 20.000 m2 Hallenfläche stehen dafür zur Verfügung.
Die Testhalle ist speziell auf Prüf- und Testprozesse ausgelegt, inklusive robusten Bodenplatten und entsprechender Krantechnik, um anspruchsvolle dynamische Prüfstände betreiben zu können.
Das neue Prüf- und Testzentrum Motoren ist eine topmoderne, technisch aufwendig ausgestattete Anlage, mit der SEW-Eurodrive seine Entwicklungs- und Qualitätsführerschaft langfristig sichert und ausbaut.
Die Gesamtplanung und Bauüberwachung hat das Ingenieurbüro ID Ingenieure aus Karlsruhe übernommen.
Das geplante Wärmepumpenkonzept für das Prüf- und Testzentrum von SEW-Eurodrive in Bruchsal sieht vor, die Beheizung mit einer Kombination aus Wärmepumpentechnologie und einem integrierten Kühlwasserbehälter aus Kunststoff Polyethylen (oft auch als Kältespeicher oder Puffer bezeichnet) mit einem Nutzvolumen von 57m3 zur freien Aufstellung im frostgeschützten Raum im 4. Obergeschoss umzusetzen.
Die Ausführung des Wärmepumpenkonzepts erfolgt über den Komplettanbieter Schlindwein aus Bruchsal, Partner für zukunftsweisenden industriellen Anlagenbau und Gebäudetechnik.
Für die Planung, Fertigung und Aufstellung des Kühlwasserbehälters wurde von Schlindwein der Kunststoffspezialist für Anlagenbau, Rohrleitungsbau und Umwelttechnik Fa. HOPFGARTNER aus Ilmendorf beauftragt. Die große Herausforderung bestand darin, den großvolumigen Kühlwasserbehälter nachträglich in der bestehenden Rohbauphase - bei bestehender Einrüstung und Sicherheitsbarrieren - ins Gebäude im 4. Obergeschoss einzubringen.
Das nachhaltige und innovative Wärmepumpensystem soll die Umgebungs- oder Prozesswärme effizient zurBeheizung der Hallen und Technikbereiche nutzen. Dazu wird über Wärmepumpen die nötige Heizenergie bereitgestellt, wobei die gleichzeitig anfallende Kälte in einem zentralen Kühlbehälter zwischengespeichert wird. Das System wird so ausgelegt, dass Spitzenlasten (z.B. starke Heiz- oder Kühlanforderungen durch Simultanbetrieb mehrerer Prüfstände) durch Zwischenspeicherung energetisch optimal ausgeglichen werden können. Neben Heiz- und Kühlkreisläufen wird auch die Abwärme aus Prüfständen für die Speisung des Systems nutzbar gemacht, mit dem Ziel eines möglichst energieautarken Testzentrums. Die Puffer- bzw. Kühlbehälter sind modular zu- oder abschaltbar und sorgen für einen stabilen Betrieb bei wechselnden Lastanforderungen. (Quelle: Grassl)
Für die Installation des Kühlwasserbehälters in der Rohbauphase des SEW-EURODRIVE-Testcenters in Bruchsal sind mehrere Kundenziele bei der Umsetzung zu erfüllen:
- Konzeptentwicklung, Planung und Vor-Ort-Aufstellung im 4. Stock eines Kunststoff-Kühlwasserbehälter mit einem Nutzvolumen von 57m3 in entsprechenden Abmessungen für die bestehende Fundamentfläche
- Auswahl eines hochsteifen, stabilen und verschweißbaren Kunststoffmaterials, vollflächige Ausführung
- Berücksichtigung der vorhandenen Einbringungsmaße von oben über einen Kran zwischen Dach und schossdeckenplatte an der vorgesehenen Gebäudeöffnung
- Technische Lösung für die sichere Einbringung der Behälterbauteile über die enge Gebäudeöffnung in das Gebäude mittels Baukrans und Hilfsvorrichtung
- Auslegung der Behältermaße nach Vorgabe der vorhandenen Fundamentplatte
- Hohe Qualität (keine Korrosion) und lange Lebensdauer des Kühlwasserbehälters aus Polyethylen PE-HD
- Hohe thermische Isolation des Kühlwasserbehälters
- Einhaltung der engen Terminvorgabe für Einbringung und Aufstellung
- Prüffahige Statik für den Kühlwasserbehalter
- Gewährleistung einer 100%-Dichtheit (Dichtheit aller Schweiß- und Verbindungsnähte)
- Abmessungen der Einzelteile für Transportmöglichkeiten mit LKW berücksichtigen
Das technische Lösungskonzept für den Kunststoff-Kühlwasserbehälter des SEW-Testcenters wurde gemäß den spezifizierten Anforderungen des Planungsbüros ID Ingenieure, Karlsruhe und des Generalunternehmers Schlindwein, Bruchsal projektspezifisch konzipiert.
Konstruktions- und Fertigungskompetenz
Die kunststoffgerechte Auslegung und Dimensionierung des Behälters basiert auf langjährigem Konstruktions-und Fertigungs-Knowhow der Firma Hopfgartner und wird unter Berücksichtigung komplexer baulicher und betrieblicher Vorgaben realisiert. Sämtliche Konstruktionselemente werden bezüglich Funktion, Medienresistenz und Integrität exakt auf die geplanten Betriebsbedingungen und Schnittstellen abgestimmt.
Detailplanung und Produktion
Nach Auftragsklärung werden von Hopfgartner sämtliche Schritte von der bauteilorientierten Detailkonstruktion bis zur präzisen Werkstattfertigung umgesetzt, inklusive aller zugeordneten Verrohrungs-und Anschlusselemente aus Kunststoff. Die termingerechte Logistik gewährleistet den just-in-time Transport aller Behälter- und Systemkomponenten zur Einbaustelle.
Einbringung und Montage
Für die gefahrlose bodenseitige Einbringung der Einzelbauteile via Baukran werden temporär montierte, speziell entwickelte Gleitkufen aus hochgleitfähigem Kunststoff eingesetzt, welche nach erfolgtem Einbau rückbaubar sind (Bild 1). Die fachmännische Aufstellung auf dem Fundament und die komplette Behältermontage, einschließlich vor-Ort-Verschweißung, erfolgen durch erfahrene Kunststoff-Spezialisten von Hopfgartner.
Materialauswahl und technische Vorteile
Zur strukturellen Verstärkung und Sicherung der Behälterstabilität sowie der Formbeständigkeit werden PE-HD Hohlkammerprofile aus dem Haus SIMONA eingesetzt. Der eingesetzte Kunststoff PE-HD (Polyethylen hoher Dichte) erfüllt sämtliche Anforderungen hinsichtlich Chemikalien- und Medienresistenz, sowie Druck-,Temperatur- und Deformationsbeständigkeit im technischen Dauereinsatz.
Die wachsähnliche Oberflächenstruktur von PE-HD ermöglicht durch ihre Glätte eine einfache Reinigung und bietet zusätzlichen Schutz gegen Korrosion und Alterung; der Werkstoff ist vollständig recyclebar.
Diese Ausführung gewährleistet, dass der Kühlwasserbehälter technisch und wirtschaftlich optimal in das SEW-Testcenter integriert werden kann, bei maximaler Betriebssicherheit und Langlebigkeit.
Bild 1: Gleitkufen als Einbringhilfe für die einzelnen Bauteile des Kühlwasserbehälters und Kühlwasserbehälter fertig montiert
Bildquelle: HOPFGARTNER Kunststoff- & Umwelttechnik GmbH, Ilmendorf
Das wirtschaftliche Lösungskonzept für die Bauausführung des Kühlwasserbehälters wurde von Hopfgartner in enger Abstimmung mit dem Ingenieurbüro ID Ingenieure und dem Komplettanbieter Schlindwein 1:1 umgesetzt. Hier die einzelnen Umsetzungsschritte in der Praxis:
1. Planung und Konstruktion des Kühlwasserbehälters aus PE-HD mit 57m3-Nutzvolumen durch Hopfgartner
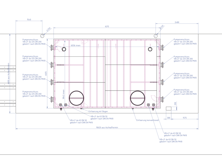
Bild 2: Maßzeichnung - Draufsicht vom Kühlwasserbehälter aus PE-HD mit 57m3-Nutzvolumen
Bildquelle: Hopfgartner Kunststoff- und Umwelttechnik GmbH, Ilmendorf
2. Termingerechter Transport und Anlieferung an der Baustelle
Bild 3: Anlieferung der einzelnen Bauteile des Kühlwasserbehälters aus Kunststoff PE-HD
Bildquelle: Hopfgartner Kunststoff- und Umwelttechnik GmbH, Ilmendorf
3. Heben der einzelnen Behälterbauteile mittels Baukranes in das 4. Obergeschoss des SEW-Gebäudes
Bild 4: Beförderung der Behälterbauteile mittels Baukranes in das 4. OG
Bildquelle: Hopfgartner Kunststoff- und Umwelttechnik GmbH, Ilmendorf
4. Sichere Einbringung der Behälterbauteile über die Einbringhilfe mit Gleitkufen
Zunächst wurden die 3 Rutschrampen als Gleitkufen am Boden fest verankert, dann hebt der eigens dafür georderte Baukran die vorgefertigten Bauteile hoch und lässt sie über den Rampen ab, dann rutschen die Bauteile entlang der Gleitkufe ins Gebäude (wie geplant), ohne, dass sich jemand nach außen lehnen muss. Anschließend werden die großen Bauteile vom Hopfgartner-Montageteam nach innen gezogen.
Bild 5: Einbringhilfe mit Gleitkufen im Einsatz
Bildquelle: Hopfgartner Kunststoff- und Umwelttechnik GmbH, Ilmendorf
5. Alle Einzel-Behälterbauteile auf Fundamentplatte
Nachdem alle Einzel-Behälterbauteile sicher eingebracht worden sind, erfolgt die Aufstellung und Montage durch das Hopfgartner-Montageteam.
Bild 6: Alle Behälterbauteile sicher und unversehrt eingebracht
Bildquelle: Hopfgartner Kunststoff- und Umwelttechnik GmbH, Ilmendorf
6. Aufstellung, Ausrichtung und Vor-Ort-Verschweißung der Behälterbauteile auf Fundamentplatte
Bild 7: Aufstellung und Ausrichtung der Behältervorderwand
Bildquelle: Hopfgartner Kunststoff- und Umwelttechnik GmbH, Ilmendorf
7. Fertigmontierter Kühlwasserbehälter
Nach nur acht Tagen engagiertem Einsatz vor Ort hat das Hopfgartner-Montageteam das Projekt erfolgreich abgeschlossen – „es ist vollbracht!“ Wir sind stolz auf unsere erfahrenen und kompetenten Facharbeiter, die, wie gewohnt, ihr Werk mit höchster Motivation und Professionalität vollendet haben.
Bild 8: Vor-Ort-verschweißter Kühlwasserbehälter aus PE-HD für die Wärmepumpe
Bildquelle: Hopfgartner Kunststoff- und Umwelttechnik GmbH, Ilmendorf
- Nachträgliche Einbringung eines großvolumigen Kühlwasserbehälters im 4. Obergeschoss durch Vor-Ort-Verschweißung der Einzelbauteile
- Dauerhafte Funktionssicherheit und Dichtheit durch Kunststoff PE-HD gewährleistet
- Prüffähige Statik für Kühlwasserbehälter aus Kunststoff PE-HD
- Hohe Behälterstabilität und Verformungssicherheit durch Einsatz von PE-HD Hohlkammerplatten
- Thermoplastischer Speicherbehälter aus PE-HD, korrosionsfrei und 100%recyclingfähig
- Sicherer Transport und Einbringung durch fest integrierte Lasthaken
- Hohe Betriebssicherheit durch fachgerechte Verschweißung nach DVS-Richtlinie 2205-1. Dichtheitsnachweis durch Dichtheitsprüfung mittels Funkeninduktionsprüfung.
- Umweltfreundliche Kühlbehälterlösung durch 100% recyclebarem Kunststoff PE-HD
Der hohe Leistungsanspruch „Wir steigen da ein, wo andere
aussteigen“ wurde auch bei diesem Projekt vollumfänglich umgesetzt.
Unser Kunde ist begeistert.
Innovatives Bauprojekt „Prüf- und Testzentrum Motoren“ von SEW-Eurodrive in Bruchsal
Schlindwein, Bruchsal (Komplettanbieter für industriellen Anlagenbau, Gäudetechnik, Service & Wartung)
SEW-Testcenter von SEW-Eurodrive, Bruchsal
Kühlwasserbehälter Nutzvolumen 57m³ zur freien Aufstellung im frostgeschützten Raum
15. September 2025

Schlindwein, Bruchsal (Komplettanbieter für industriellen Anlagenbau, Gäudetechnik, Service & Wartung)
Kühlwasserbehälter

GWG Gesellschaft für Wirtschaftsförderung und Stadtentwicklung Göttingen mbH, Göttingen
Regenwasserspeicher zur freien Aufstellung

EKK Anlagentechnik GmbH & Co. KG
Umrüstung KTL-Tauchbecken

LBU Lobenhofer Bau und Umwelt GmbH
Mobiler Deponie-Sickerwasserspeicher

AGR Abfallentsorgungs-Gesellschaft Ruhrgebiet mbH
Mobile Deponiegasstation

STRABAG AG
Kühlwasserbecken aus PE100

STRABAG AG
STRABAG AG

Deponie Morgenstern Landkreis Goslar
Deponie Morgenstern Landkreis Goslar

Nabaltec AG
Nabaltec AG

BMW-Werk Regensburg
BMW-Werk Regensburg

Automobilindustrie